築浅分譲マンション売り出し開始!! 早稲田大学 大隈講堂 脇 1DKタイプ 現在空室です!!
2024-11-24
価格 4,480万円
交通 都電荒川線「早稲田」駅徒歩3分 東西線「早稲田」駅徒歩7分
建物名 ライオンズ早稲田ミレス
所在地 新宿区西早稲田1-9-6
規模構造 鉄筋コンクリート造陸屋根地上12階建て
総戸数 全42戸
完成 2017年11月
土地権利 所有権敷地権
土地面積 374.53㎡
施工会社 日広建設株式会社
管理会社 株式会社大京アステージ
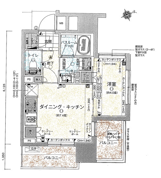
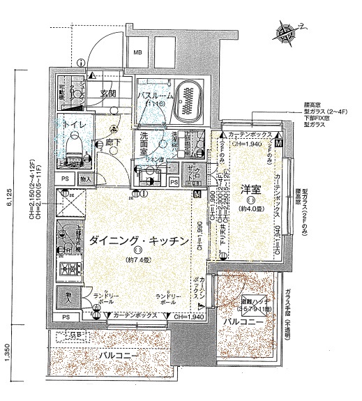
所在階 9階
部屋面積 30.04㎡
管理費 11,800円
修繕積立金 9,370円 合計21,170円
現況 空室
引渡し 相談
<コメント>
現在は空室ですが、以前は早稲田大学学生さんに賃貸しておりました。その時の賃料は140,000円/月、管理費10,000円/月の計150,000円/月でした。
賃貸に出してもいいし、ご自分で住むもありです。ご興味のある方は是非お問合せお待ちしております。
TEL03-3577-2103
FAX03-3577-2106
mail:info@f-room.net
担当:大沢 まで





























